Grape Street
       
     
Description - Grape.jpg
       
     
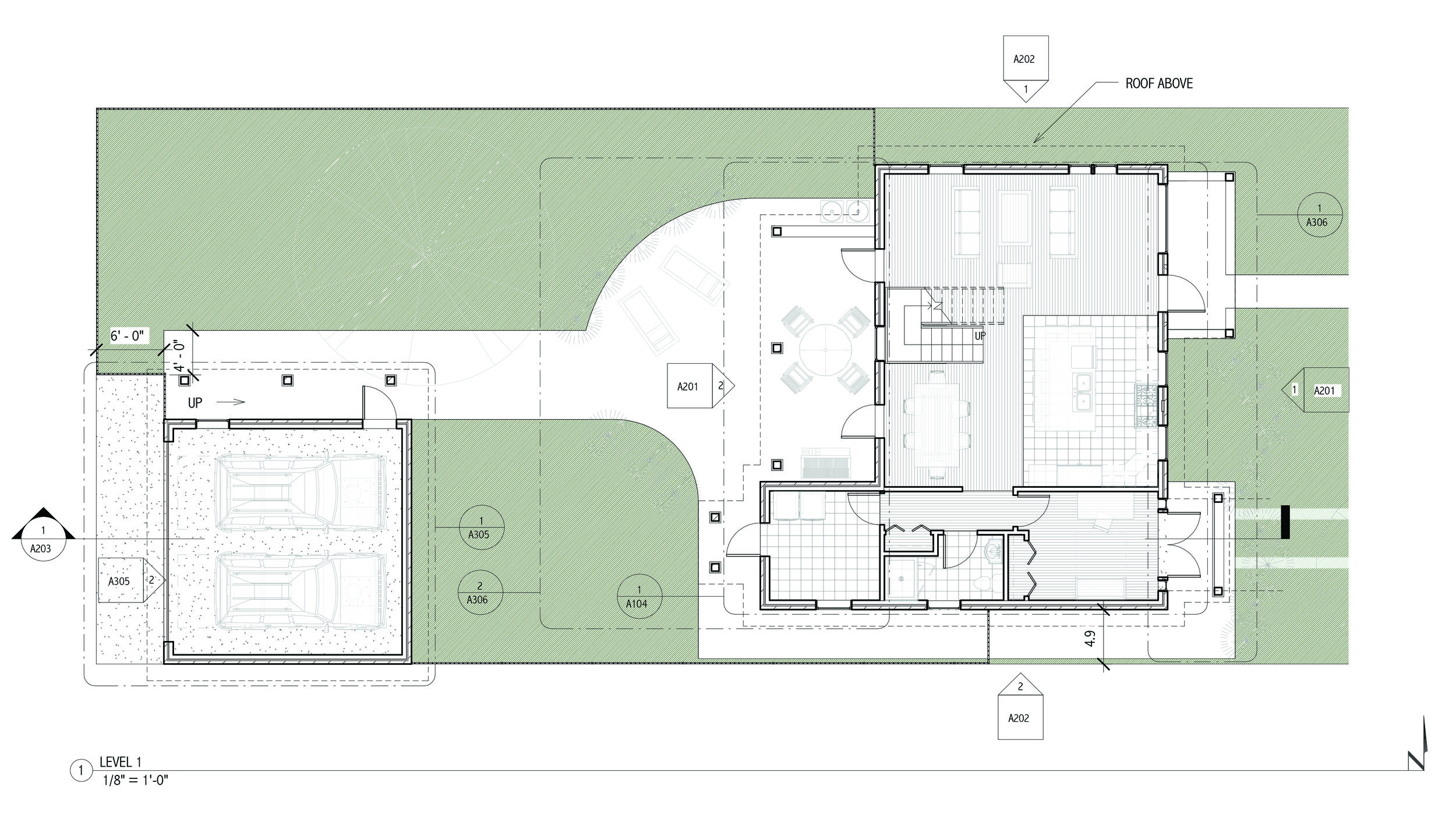
Site plan with new garage and completely renovated interior first floor.
       
     
View of the new kitchen island and layout.
       
     
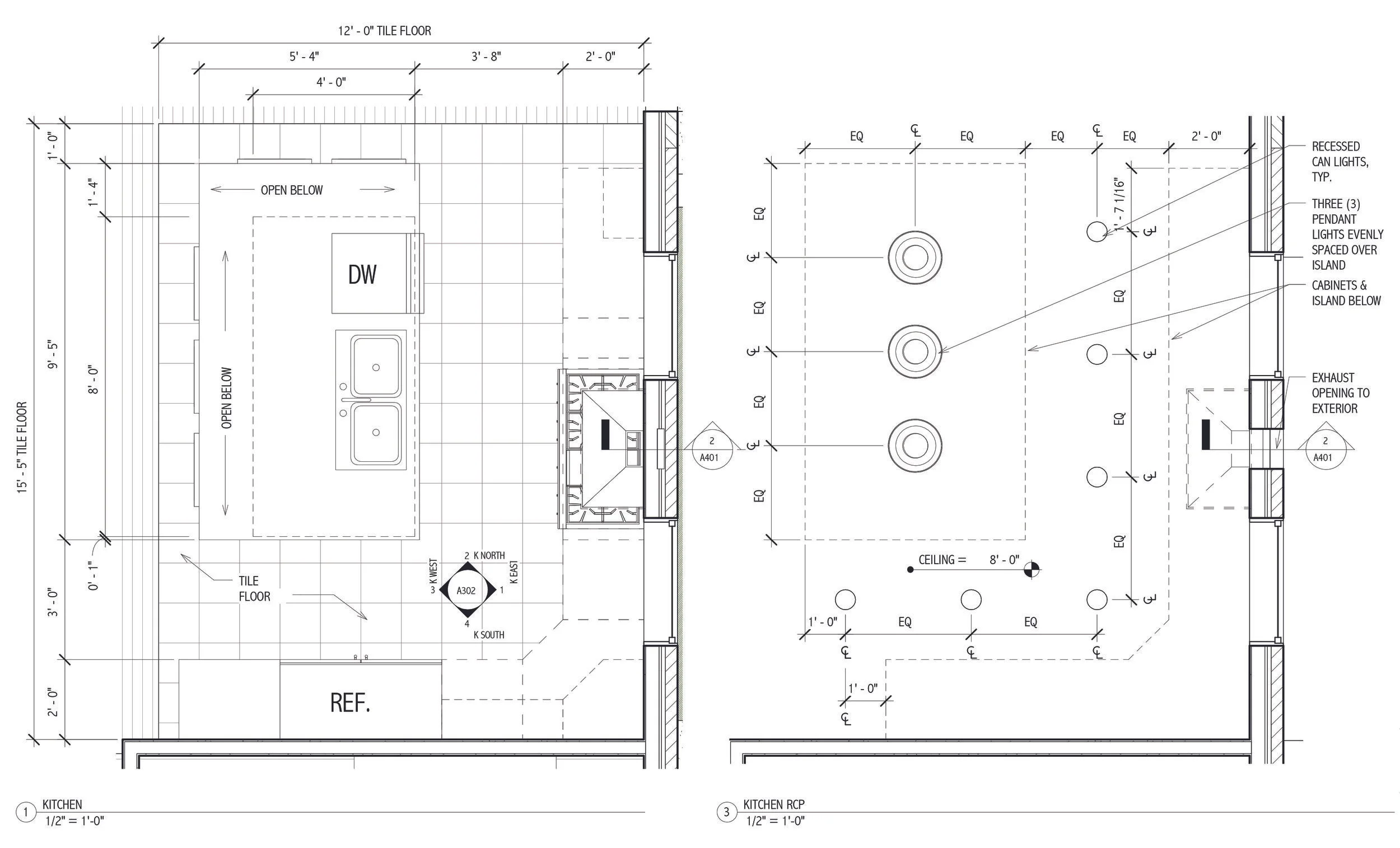
Kitchen Plan & RCP
       
     
View of the dining area west of the kitchen, separated by the new staircase.
       
     
View from the new kitchen to the living space beyond.
       
     
3D view of the new open first floor plan.
       
     
View of the living area.
       
     
Pre-construction view of the old kitchen and living area.
       
     
3D view of the open kitchen and connected dining area.
       
     
View of the living area and central staircase which anchors and organizes the spaces.
       
     
View of the new kitchen work space.
       
     
View of the new first floor office with hidden guest bedroom.
       
     
View of the open Murphy bed which transforms the office into a guest room.
       
     
View of the vaulted upstairs master bedroom.
       
     
View of the master bedroom looking toward the master closet and attached bathroom.
       
     
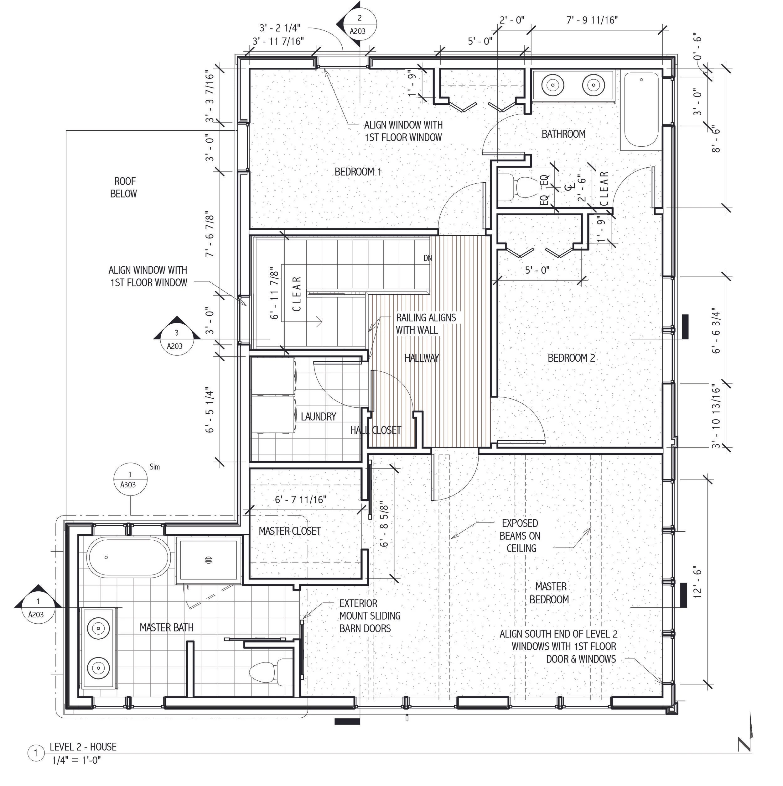
Second level floor plan.
       
     
New master bathroom.
       
     
New master bathroom.
       
     
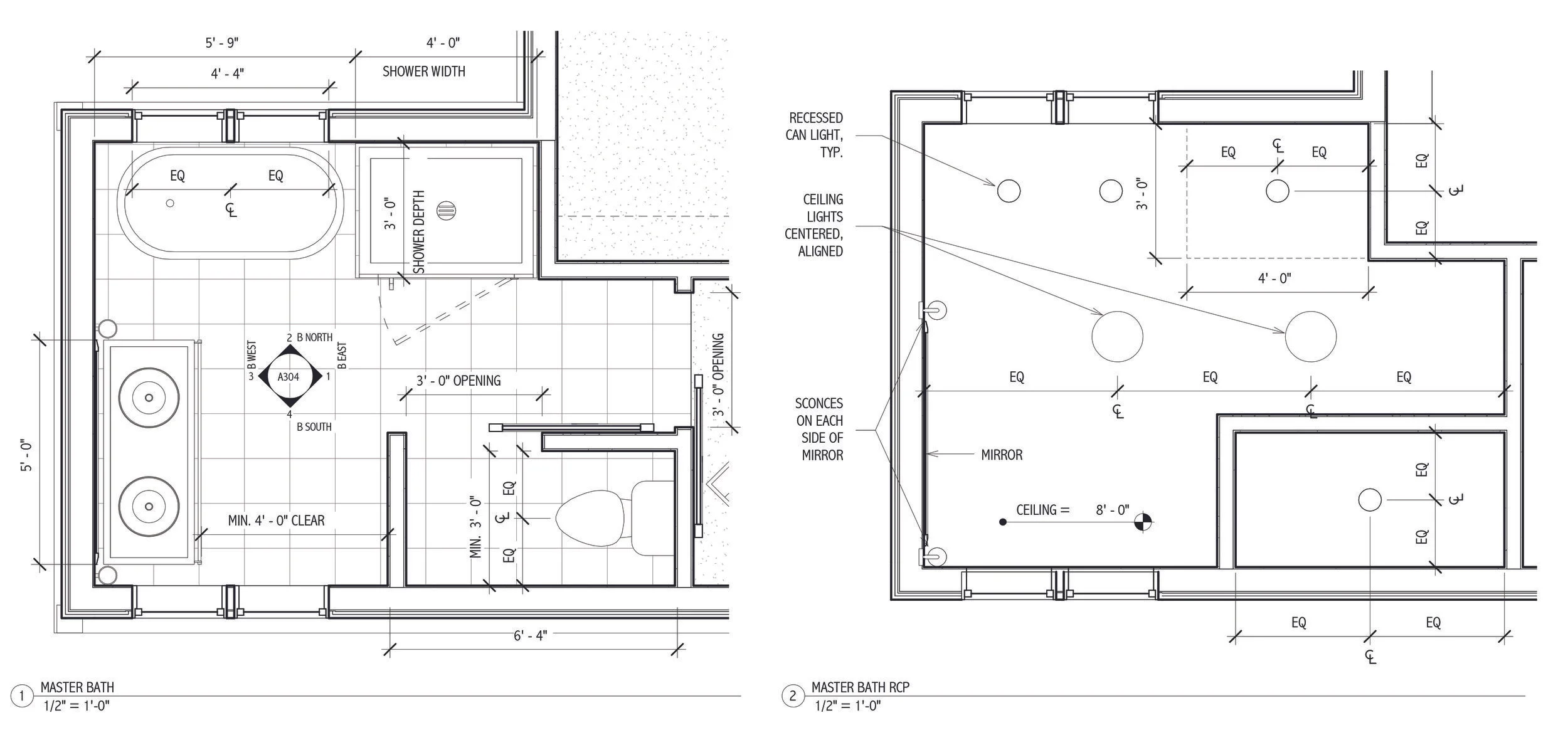
Master Bathroom Plan & RCP
       
     
3D view of house with the new second floor addition.
       
     
Pre-construction view of the house.
       
     
Front/East Exterior Elevation
       
     
3D view of the backyard and new garage.
       
     
Grape Street
       
     
Grape Street
Description - Grape.jpg
       
     
Site plan with new garage and completely renovated interior first floor.
       
     
Site plan with new garage and completely renovated interior first floor.
View of the new kitchen island and layout.
       
     
View of the new kitchen island and layout.
Kitchen Plan & RCP
       
     
Kitchen Plan & RCP
View of the dining area west of the kitchen, separated by the new staircase.
       
     
View of the dining area west of the kitchen, separated by the new staircase.
View from the new kitchen to the living space beyond.
       
     
View from the new kitchen to the living space beyond.
3D view of the new open first floor plan.
       
     
3D view of the new open first floor plan.
View of the living area.
       
     
View of the living area.
Pre-construction view of the old kitchen and living area.
       
     
Pre-construction view of the old kitchen and living area.
3D view of the open kitchen and connected dining area.
       
     
3D view of the open kitchen and connected dining area.
View of the living area and central staircase which anchors and organizes the spaces.
       
     
View of the living area and central staircase which anchors and organizes the spaces.
View of the new kitchen work space.
       
     
View of the new kitchen work space.
View of the new first floor office with hidden guest bedroom.
       
     
View of the new first floor office with hidden guest bedroom.
View of the open Murphy bed which transforms the office into a guest room.
       
     
View of the open Murphy bed which transforms the office into a guest room.
View of the vaulted upstairs master bedroom.
       
     
View of the vaulted upstairs master bedroom.
View of the master bedroom looking toward the master closet and attached bathroom.
       
     
View of the master bedroom looking toward the master closet and attached bathroom.
Second level floor plan.
       
     
Second level floor plan.
New master bathroom.
       
     
New master bathroom.
New master bathroom.
       
     
New master bathroom.
Master Bathroom Plan & RCP
       
     
Master Bathroom Plan & RCP
3D view of house with the new second floor addition.
       
     
3D view of house with the new second floor addition.
Pre-construction view of the house.
       
     
Pre-construction view of the house.
Front/East Exterior Elevation
       
     
Front/East Exterior Elevation
3D view of the backyard and new garage.
       
     
3D view of the backyard and new garage.